Ziwei Chi 池紫薇

Overview     
Space Design     
Media and interaction     
Art and Photography     
About     
中文版


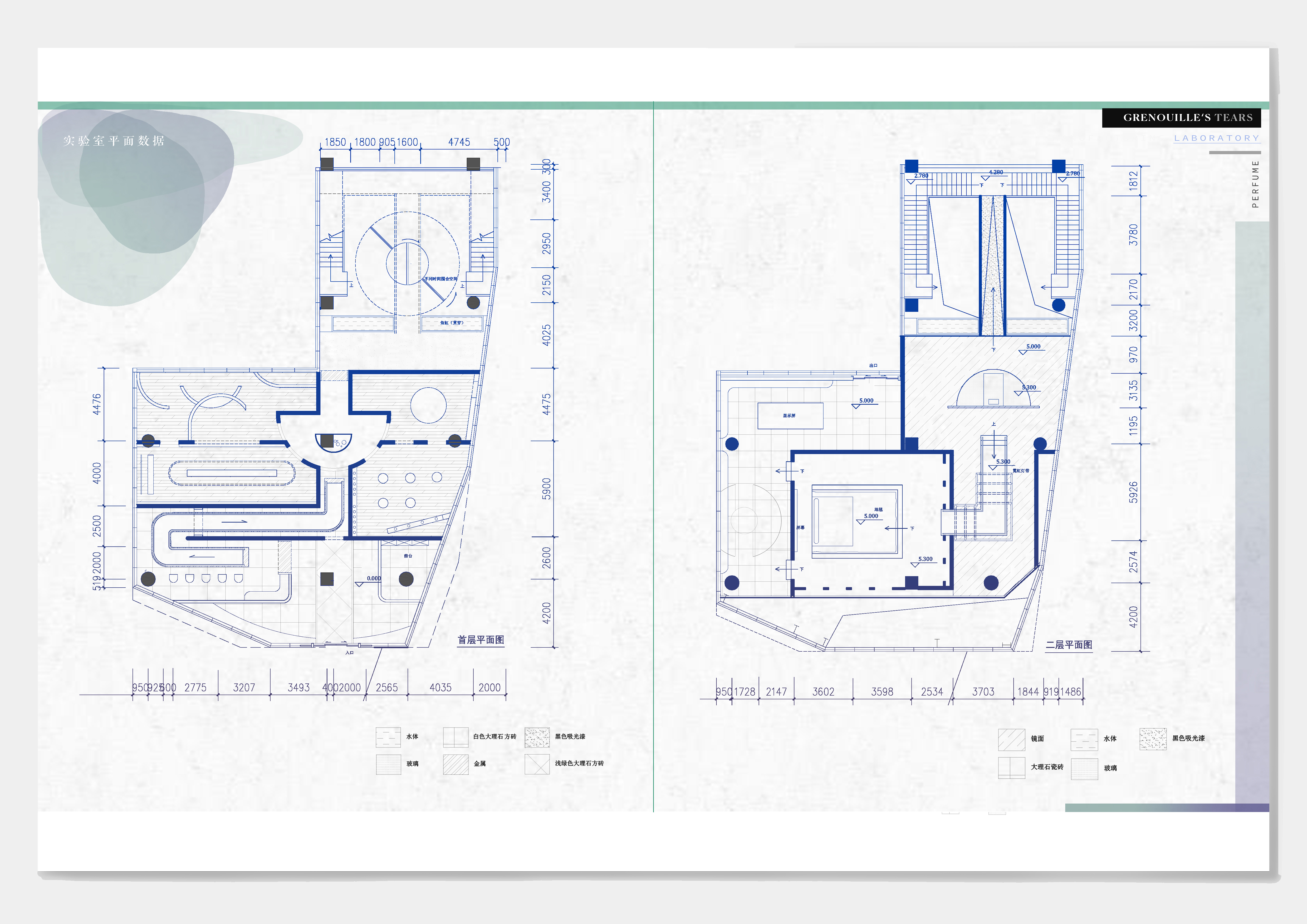
「Grenouille's Tears」 Perfume Lab


「Grenouille's Tears」 Perfume Lab

Carnival of consumption era, inversion of people and things
Constantly building a momentary self, constantly influencing others
The mixture of smells forms a new spice worship
Be willing to be part of the production line
Usher in the new trend of carnival
Narrative experience space under the new consumption mode.
2020.4 - 2020.5

"Grenouile only shed a tear once, and after the tears, he seemed to understand something, so he ended his life by chasing the memory of the first time he came to the world."
"Grenouile's Tears" is a real-time perfume manufacturing laboratory, showing the laboratory's space manual, where the identity of people and things are replaced, and people have become the materials and media for studying new perfumes. The context of the plan comes from the movie "The Great Gatsby". By extracting the objects, elements, events, and behaviors that constitute different scenes in the movie, and discussing consumer behavior, the focus is finally locked on the four parties in the movie. People will show different postures in front of different people and scenes. In order to be in the crowd, they will continue to build an instant self and influence others. The elements extracted from the four parties are combined with the steps of making fragrances and the characteristics of perfumes to create a linear heterotopia space where people walk through the passage and continue to be transported by the production line to the next space as commodities.


















Project outcomes:
- 2020 Chinese Residential Environment Design Academic Year Award, Silver award.

Advisor: Wen Liang


Back